5774 Denali Lane, Bellingham, WA 98226
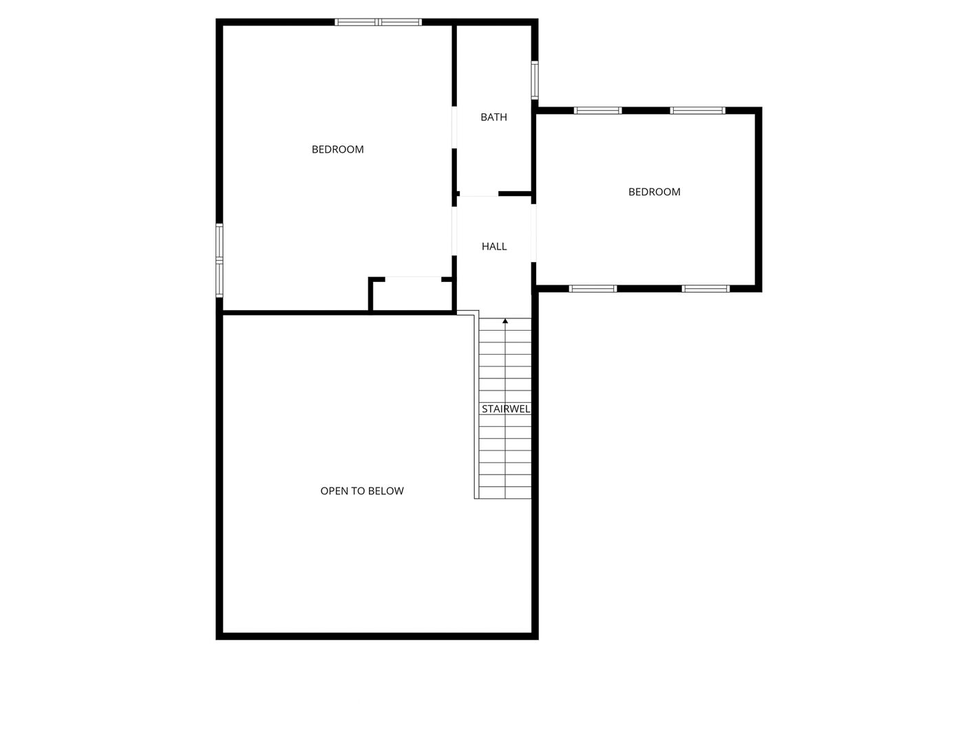
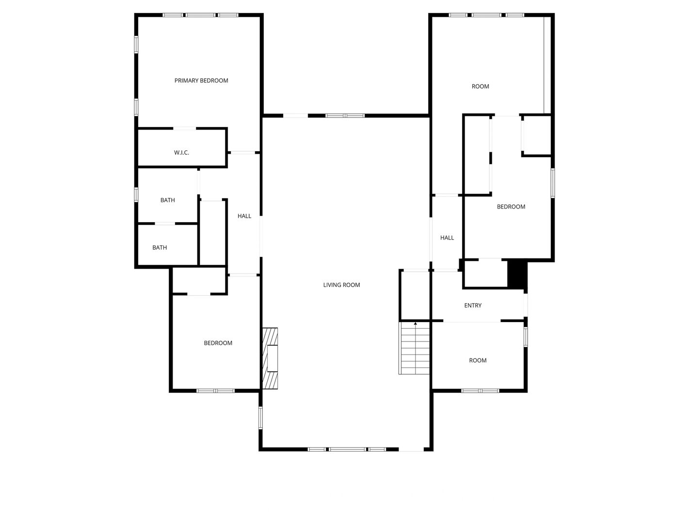
Located on a private acre in the conveniently located Denali Ridge and adjacent to over 60 acres of conservation land, this nearly 4,000 sq ft new construction home is designed to balance scale, comfort, and everyday livability. A covered entry porch welcomes you into the great room, where the open layout flows seamlessly into the dining area and expansive kitchen. The kitchen features a large island, generous workspace, and direct access to the patio, ideal for both entertaining and daily living. The main level is designed for easy one-level living with three bedrooms, including the primary suite with a freestanding tub, walk-in shower, walk-in closet, and direct access to the patio. Two additional main-floor bedrooms each include their own walk-in closets. Upstairs, a bedroom, full bathroom, and flex space, create a versatile space for work, recreation, or guests. A detached 2 car garage adds flexibility with finished living space above, including a bonus room, bathroom, and office, ideal for extended living, hobbies, or remote work. Estimated completion is mid-April, offering the opportunity to enjoy a brand-new home in a picturesque Whatcom County setting.
MLS #:
2476639
2476639
Taxes
$3,505(2025)
$3,505(2025)
Lot Size
1.08 acres
1.08 acres
Type
Single-Family Home
Single-Family Home
Year Built
2026
2026
Style
2 Story
2 Story
Views
Territorial, Mountain(s)
Territorial, Mountain(s)
School District
Meridian
Meridian
County
Whatcom County
Whatcom County
Community
Bellingham
Bellingham
Bathroom Details
- Full Bathrooms: 2
- 3/4 Bathrooms: 2
Interior Features
- Wired for Generator
- Disposal
- Fireplace
- French Doors
- Dbl Pane/Storm Window
- Bath Off Primary
- Water Heater
- Walk-In Closet(s)
- Vaulted Ceilings
- Walk-In Pantry
- Dining Room
- Dishwasher(s)
- Refrigerator(s)
- Stove(s)/Range(s)
- Microwave(s)
Subdivision
- Bellingham
Lot Information
- Dead End Street
- Paved
Property Features
- Gated Entry
- Patio
- Propane
- Electric Car Charging
- Cable Tv
- High Speed Internet
- Fireplace: Gas
- Fireplace: 1
- Foundation: Poured Concrete
Heating and Cooling
- High Efficiency (Unspecified)
- Wall Unit(s)
- Ductless
Homeowners Association Information
- Dues: $225/Monthly
Flooring
- Carpet
- Ceramic Tile
- Engineered Hardwood
Exterior Features
- Wood
- Cement Planked
- Roof: Composition
- Roof: Metal
Utility Information
- Sewer: Septic Tank
- Fuel: Electric, Propane, Solar Pv
- Energy: Green Generation: Solar
Parking
- Driveway
- Detached Garage
Stories
- 2
Living Area
- 3,920 sqft
5774 Denali Ln.
98226
Bellingham
, WA
See map: Google Maps
Washington US